Cannes Appartement Terrasse
85 M2
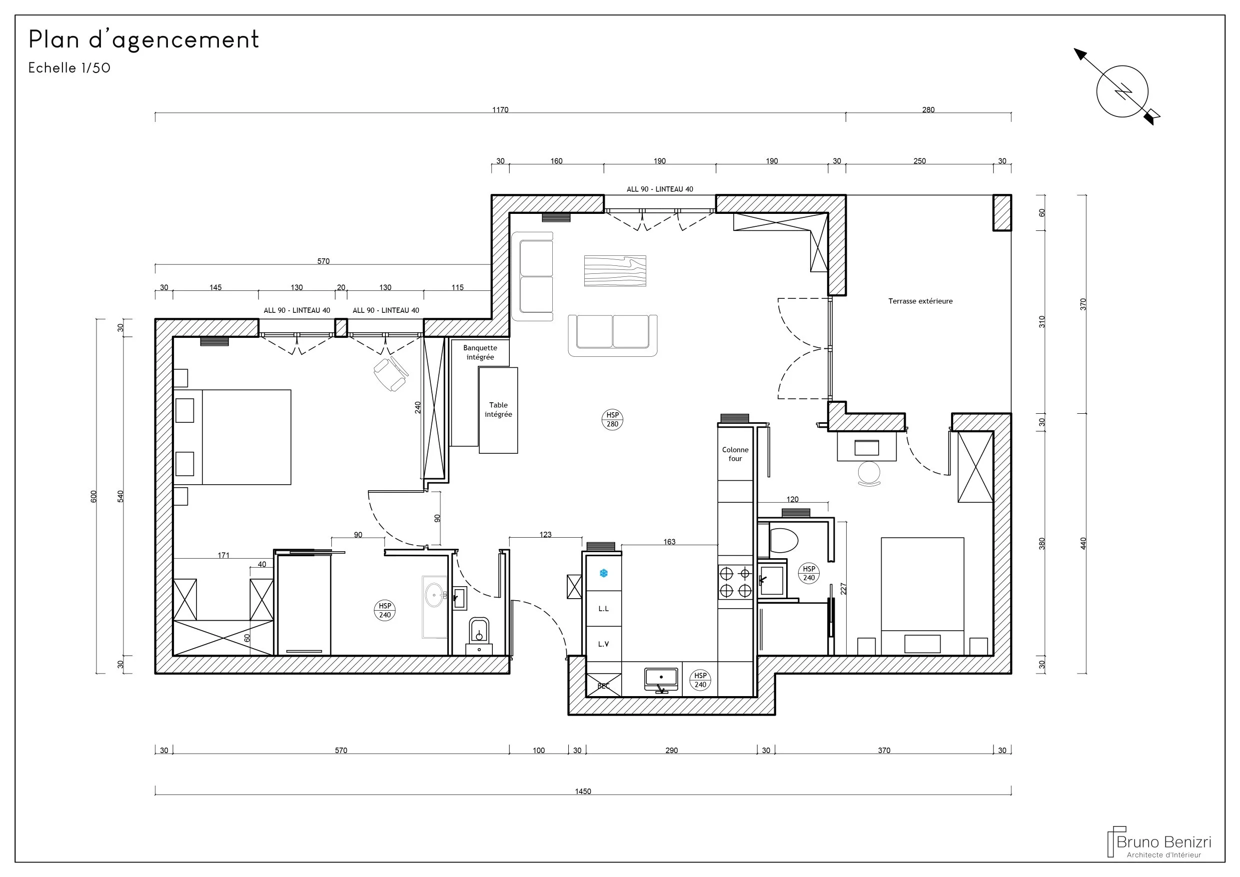
L’agencement d’un Open Space de 85 m² en un appartement de 3 pièces haut de gamme.
L'entrée se distingue par une perspective dégagée, agrémentée de rangements intégrés et élégants. Le séjour et la cuisine forment un espace à concept ouvert, combinant un salon raffiné avec mobilier design et une cuisine haut de gamme en granite et bois associée à des équipements premium. Une table à manger pouvant accueillir six convives, ainsi que des luminaires suspendus artistiques, enrichissent l'ambiance.
La suite parentale comprend une chambre spacieuse avec un lit King-size, un dressing sur mesure et une salle de bain privative équipée d'une douche à l'italienne et de doubles vasques en matériaux nobles. La deuxième Chambre, conçue pour être polyvalente, sert de chambre d'amis ou de bureau, intégrant un lit haut de gamme, un espace de travail ergonomique et des rangements astucieux, une salle de bain privative équipée d'une douche à l'italienne et d’une vasque.
Une terrasse, aménagée avec du mobilier extérieur sophistiqué et des éléments végétalisés, offre un espace de détente agréable. La décoration intérieure privilégie des matériaux nobles tels que le bois massif et la céramique, et utilise une palette de couleurs neutres sublimée par des accents décoratifs choisis avec soin.
Enfin, l'appartement est équipé de solutions domotiques avancées permettant le contrôle intelligent de l’éclairage, de la climatisation et de la sécurité. Une isolation phonique et thermique de haute performance assure un confort maximal à ses occupants.

